【f-case】家具と暮らしを楽しむ家
f-cace は、デザイン+造り付けの収納までセットされ、使い手側の感じるベネフィットを一番に考えて設計されています。今までの経験を生かし家具屋ならではの視点でご提案するこだわりをデザインした住宅の標準仕様をご確認ください。
詳しい内容については、各工務店へお問い合わせください。
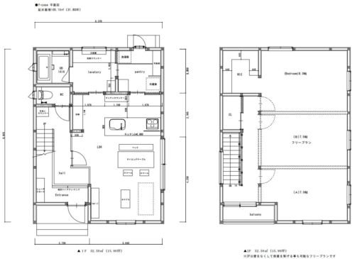
平面図
Standard Planの平面図です。
2Fは壁をなくして部屋をつなげることもできるフリープランです。
appearance
シンプルな白い壁の中に、黒の玄関扉と線の細いアイアン手摺りがアクセントの外観。
アプローチのアンティークレンガも標準仕様でご用意し、玄関周りはモルタルで仕上げます。
照明取付けには露出配管を使いインパクトのあるhiro furnitureのデザインでお客様をお迎えします。
仕上げには、植栽をアレンジし、毎日のお手入れが楽しみな場所となっています。

entrance
建物の中で一際目を引く鉄のスケルトン階段。はじめて訪れる人の目を意識し、黒で存在感のあるつくりにしました。ソリッドなデザインは土間のモールテックスと相性抜群。
サイドにはLDKに続く鉄のパーテーション。ガラスをふんだんに使いました。暗くなりがちなエントランスに柔らかな光が差し込み、土間に落ちる光の陰影が魅力的な空間をつくります。素材は鉄とオークとガラス。色はすべてhiro furnitureのベースカラーでコーディネートされています。

living
家族だけでなく来客も集うリビングとダイニングは、hiro furnitureの家具が最初からインセットされ、どこから見ても絵になる空間となっています。さらに造り付けの収納にもこだわり、使い手側の感じるベネフィットを一番に考えていつでもスッキリした空間を保てるようにデザインしています。

dining
キッチンまわりは生活感と物が溢れがちですが、冷蔵庫や家電の置き場はパントリーに任せて、食器棚のみのスッキリした壁面を実現しました。その分、キッチンの裏側は飾り&本棚になっていて、自由にディスプレが楽しめます。

furniture
ダイニングセット
ダイニングセットに合わせたTVボード&ローテーブルをお選びいただけます。
TVボード
ローテーブル
lighting
f-caseのために開発された照明やプレートが空間のさりげないアクセントに。スポットライト・ダウンライトをベースとして、部屋の明るさを確保しています。


kitchen
ステンレスの天板にオーク材と鉄脚で製作したオリジナルのキッチン!!毎日使う物だからこそこだわりました。

lavatory
大きな三面鏡付きの洗面カウンターと天井まである収納は、デザインと使いやすさにこだわり、扉を開けると色々な仕組みが施されています。三面鏡の扉を開けると置き場に困るティッシュが入るスペースがあったり、カウンター後ろの収納棚には、洗濯前の衣服を入れる洗濯カゴを置くスペースや、高い所にも手が届くように踏み台が格納されています。

pantry/closet
家事導線が良い様に洗面所とキッチンからいつでもアクセス可能な位置に配置したパントリー。洗濯機をはじめとする洗濯用品と、冷蔵庫などの家電製品と食品ストックを収納でき、無駄がなく思った以上の収納力を発揮する場所です。洗濯物を干したり、ゴミを出したり、何かと便利な勝手口もパントリーに配置しました。


















































